The Bowen Plan

The Bowen Plan

$450.00
Skip to product information
The Bowen Plan

The Bowen Plan

$450.00

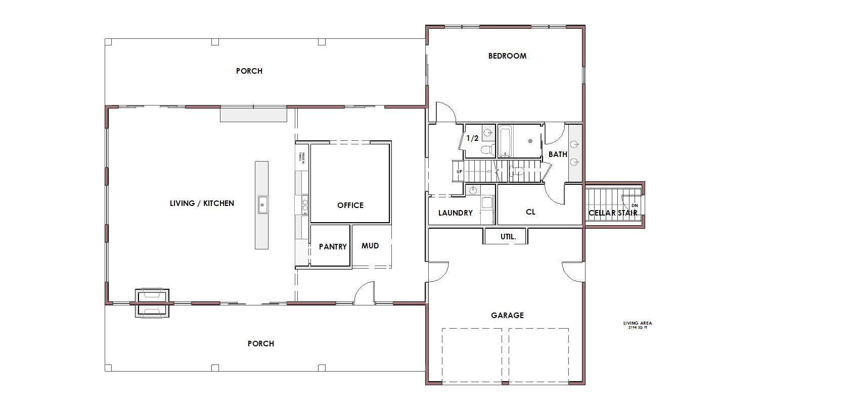
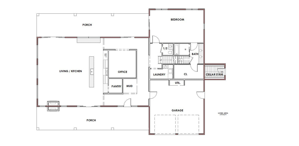
Modifications Available Upon Request

~3800 Cond Sq Ft

5 Bedroom, 4 1/2 Bathrooms, Large Media Room, Home Office, Wine Cellar Under House. 

On Slab w/ Partial Basement (Cellar). 

You may also like